Arbeitspläne

 
Bauvorhaben Neubau Einfamilien-Passivhaus (Energiesparhaus 40) Neckarstraße 26

74626 Bretzfeld-Waldbach

Bauherr Ute Straub und Stephan Langbein Waldbach
Planung Johannes Laukhuf Baumanagement Heinrich-Böll-Straße 14

74223 Flein

www.laukhuf-baumanagement.de

 

Bauzeichnung  Zeichenbüro für Hochbau

Hannelore Theodorou

Email: cad@zbht.de

hornweg 19

74193 Schwaigern

Tel. 07138/811606 FAX: 07138/811607

Urheberrecht Dem Auftragnehmer, Herrn Johannes Laukhuf verbleiben alle Rechte, die ihm nach dem Urheberrechtsgesetz zustehen Die Veröffentlichung von Zeichnungen und Planungsunterlagen wurde www.bauweise.net gewährt

 

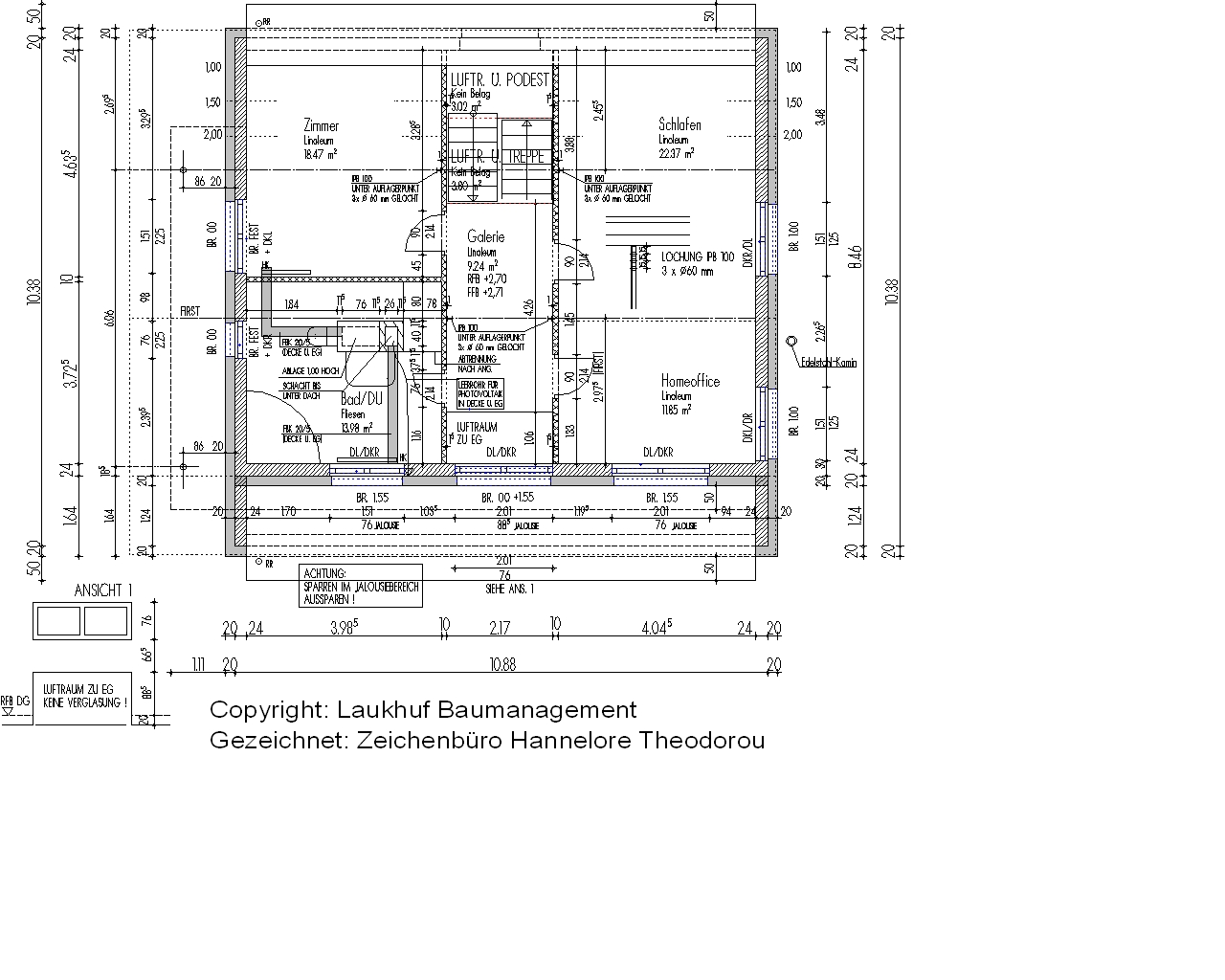
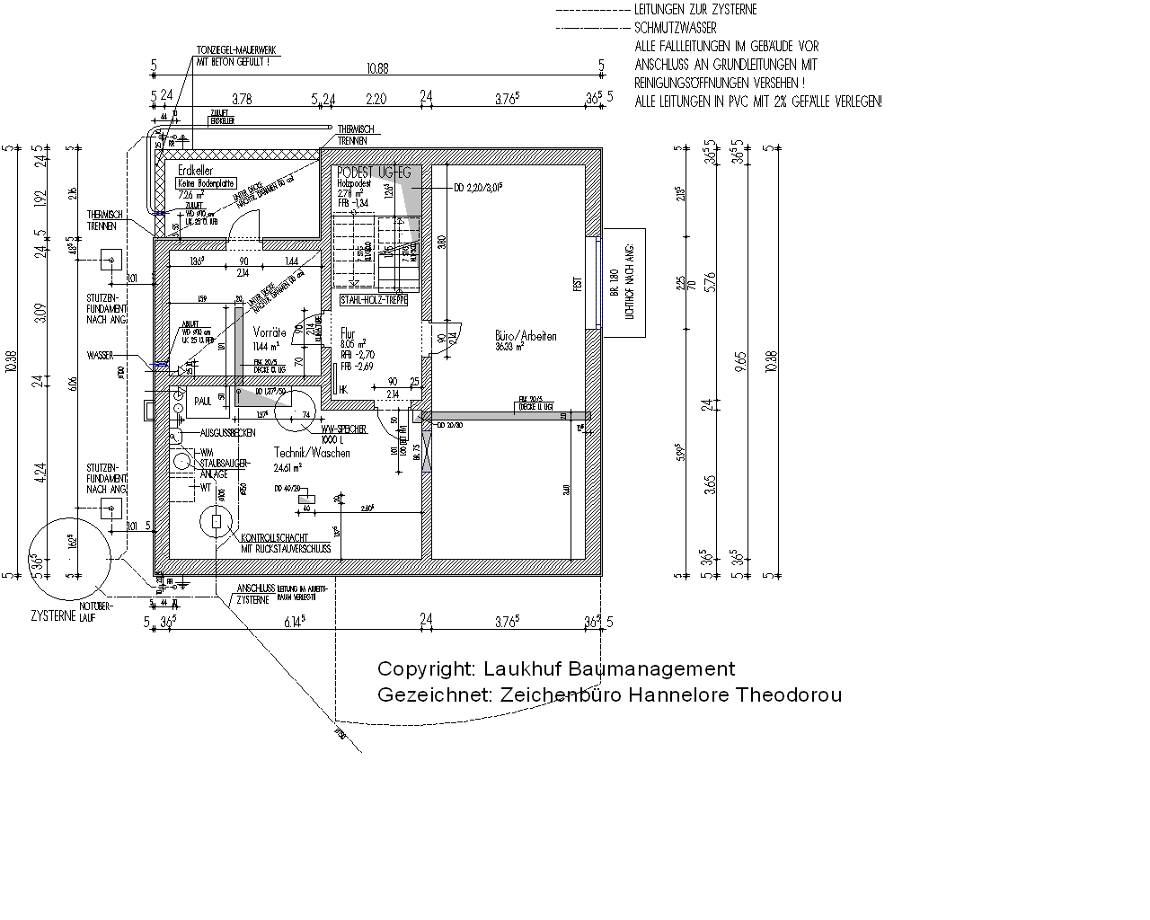
Nachfolgend finden Sie die derzeitigen Arbeitspläne (wir bekommen demnächst wieder Originale von unserem Zeichenbüro, welche qualitativ hochwertiger sind, als die ersten Vorab-Scans der Abzüge)

 

Die unten aufgeführten Bilder dienen zur Orientierung, Detail werden auf der Detailseite datgestellt.

 

Schnitt Süd (links) - Nord (rechts)

 

 

 

Untergeschoß:

Oben Nord - Unten Süd

 

 

 

 

 

 

Erdgeschoss

 

 

 

 

 

 

Dachgeschoss

 

 

 

 

 

 

www.bauweise.net