16.04.2003

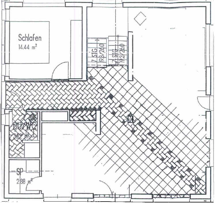
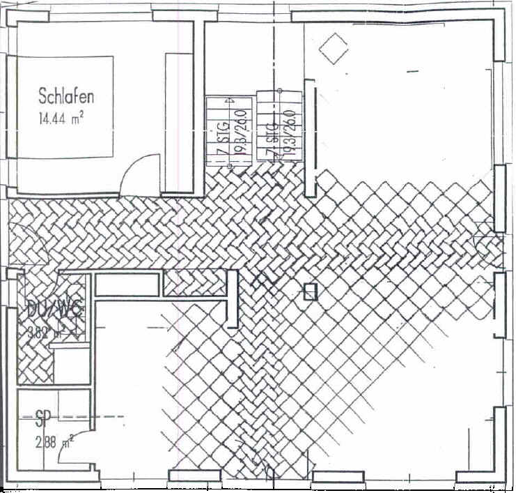
Verlegungspläne für den Cottoboden im Erdgeschoss

 
Nachfolgend sind vorausgegangene Pläne wiedergegeben

 

www.bauweise.net